Delivery date: 2028
Welcome to “Riverside”, a beautiful residential project located in one of Pafos’ most sought-after areas, Universal.
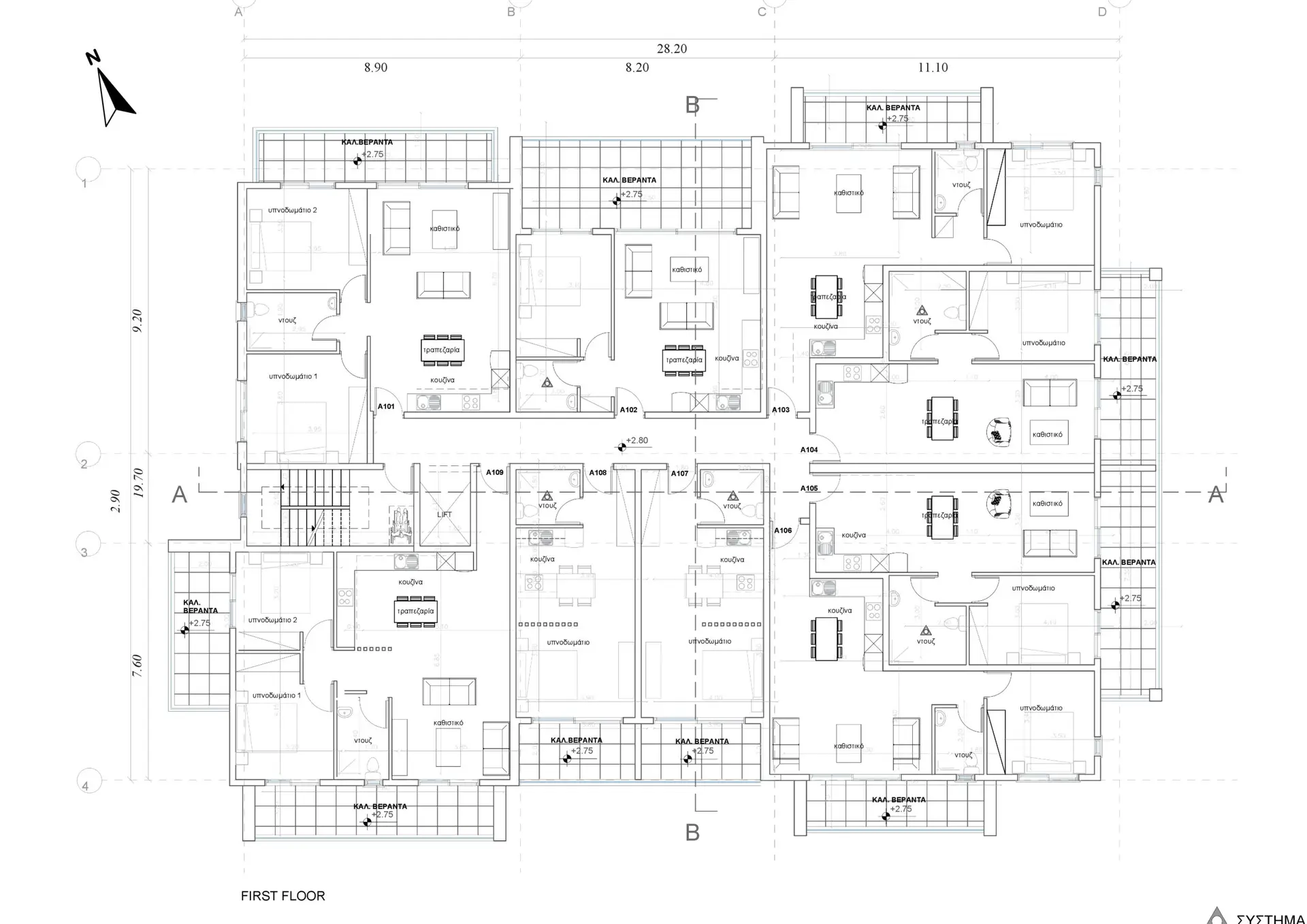
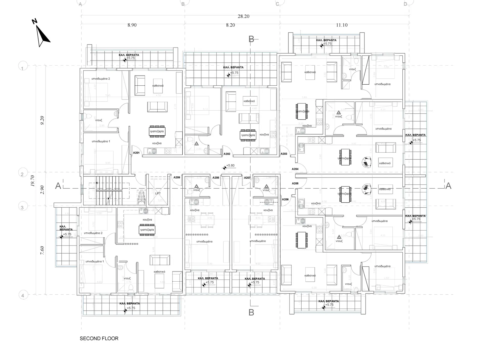
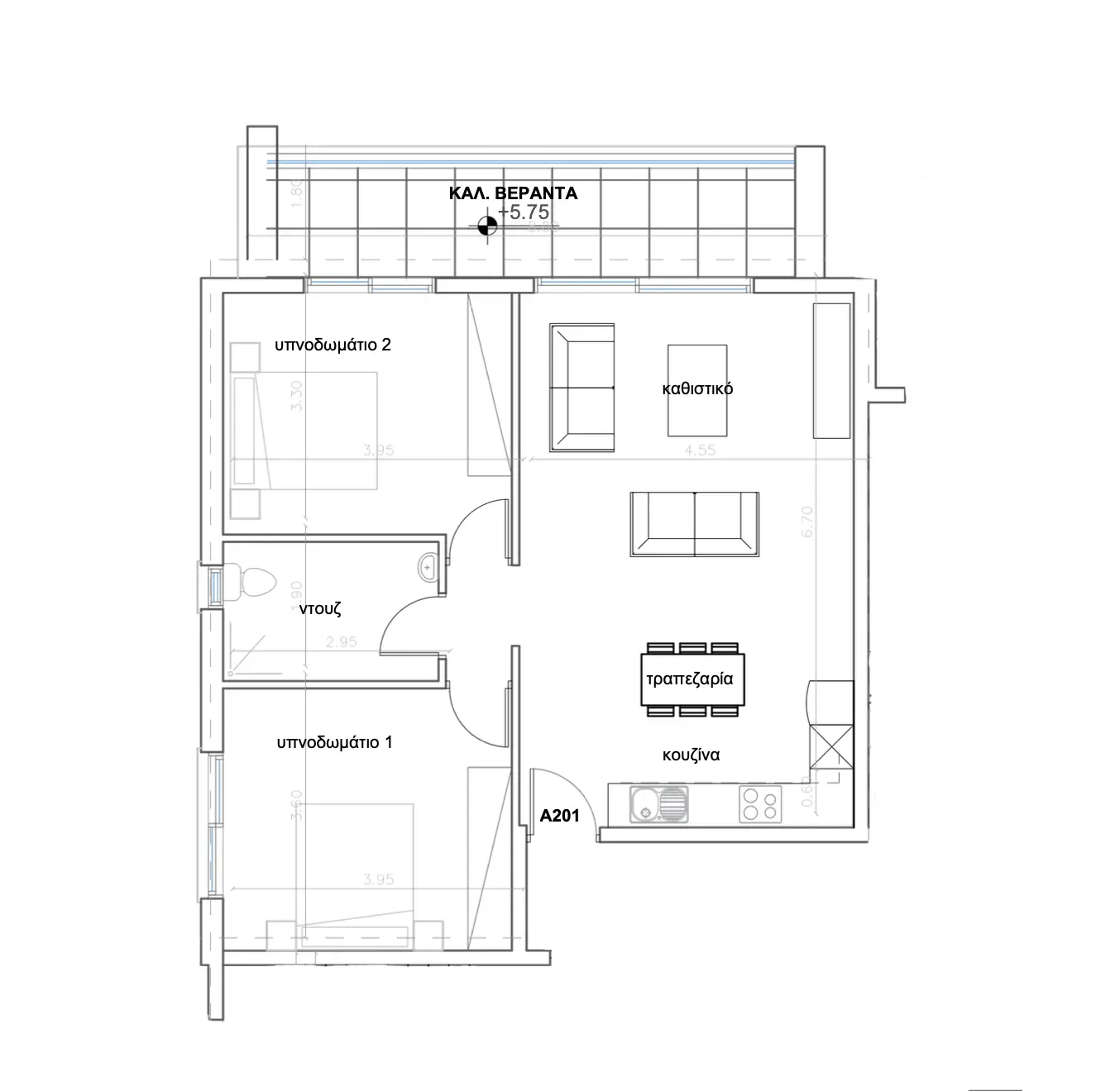
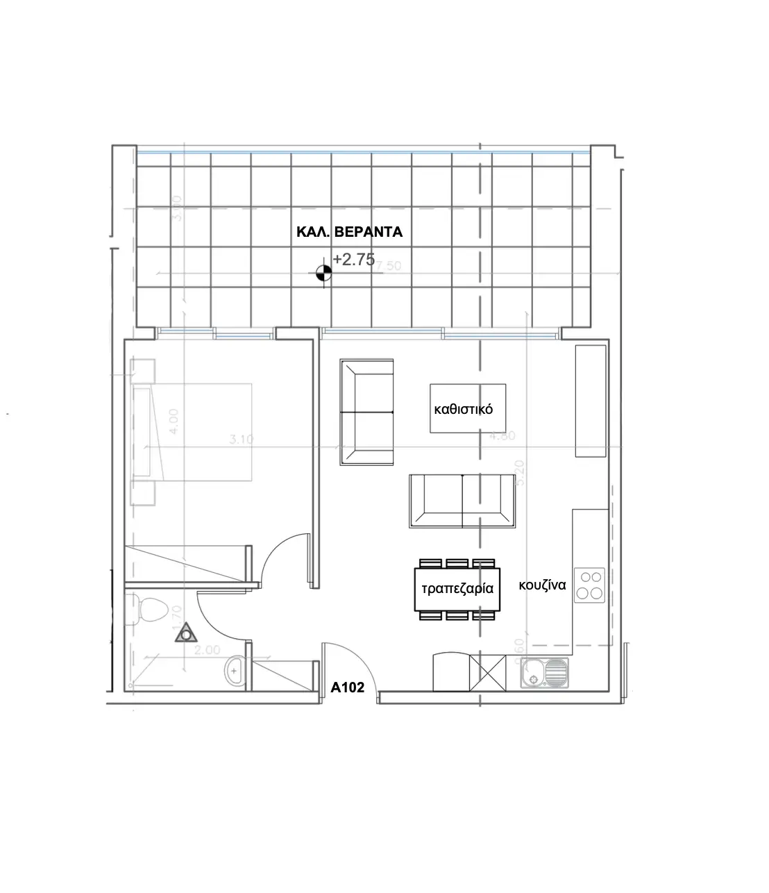
The project consists of two buildings and 31 apartments, featuring a large communal swimming pool, landscaped gardens, lobby facilities and an outdoor snack bar.
Designed to blend in with its natural environment and surrounded by tall trees that offer privacy and tranquillity, the project is a true oasis just a 10-minute walk from the sea.
“Riverside” is located only a few minutes’ drive from Pafos Town Centre and within walking distance of Iasis Private Hospital, Neapolis University and the sea.
With developments in Universal enjoying higher rental yields and capital appreciation in recent years, “Riverside” represents a great opportunity for both independent buyers and investors.
Type
Location
Villas size
Price rage
Status
Located in